Skip to Main Content

40’ Luxury Singles

Classic Collection

ARTIST'S CONCEPT
Elevation A Elevation B Elevation C

A
ELEVATION

B
ELEVATION

C
ELEVATION

The Evergreen

ELEVATION A

Elevation A - 3,699 sq. ft.
Elevation B - 3,705 sq. ft.
Elevation C - 3,711 sq. ft.

Incl. Opt. 822 sq. ft. of finished lower level

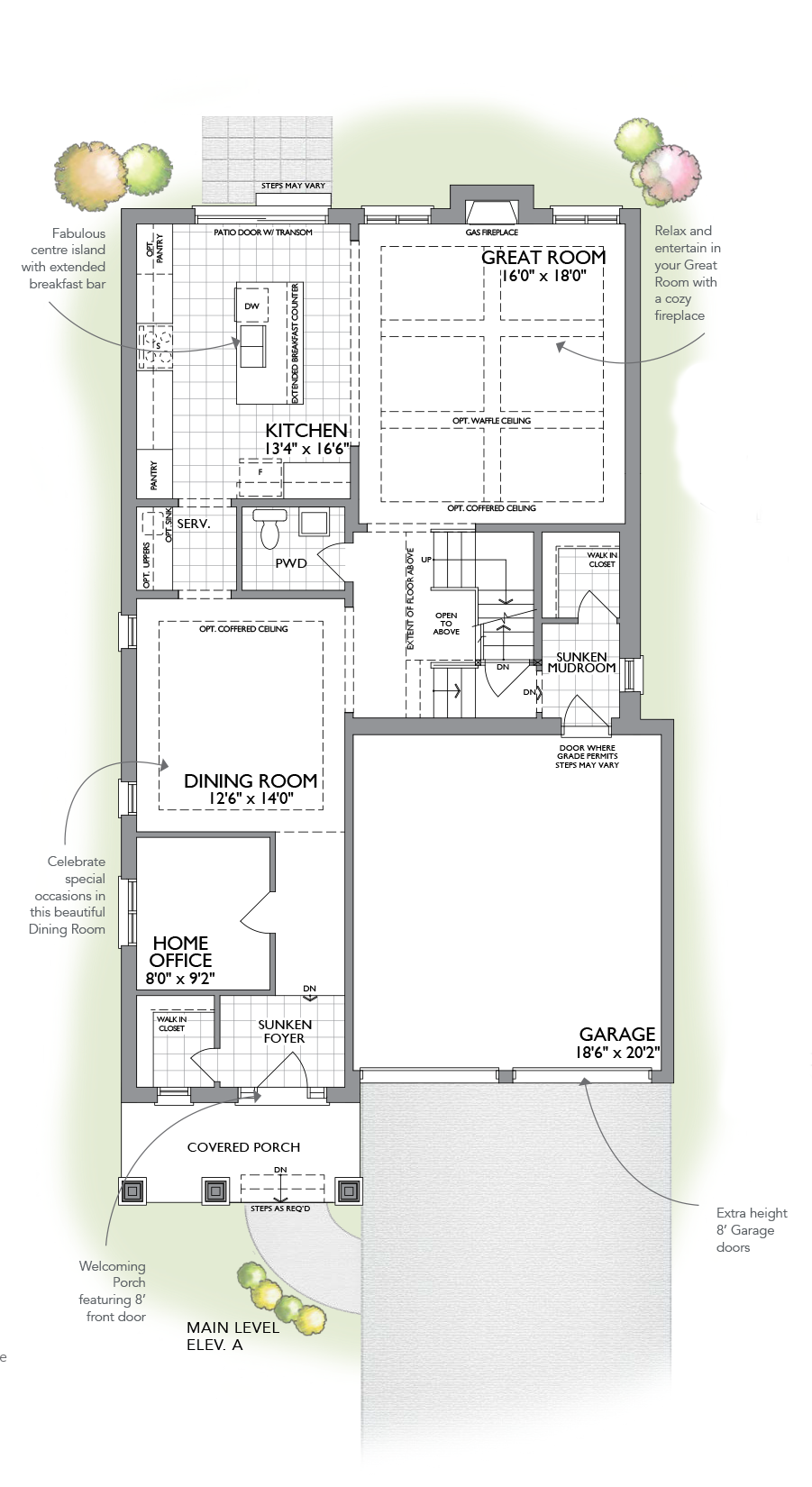
MAIN FLOOR

MAIN FLOOR

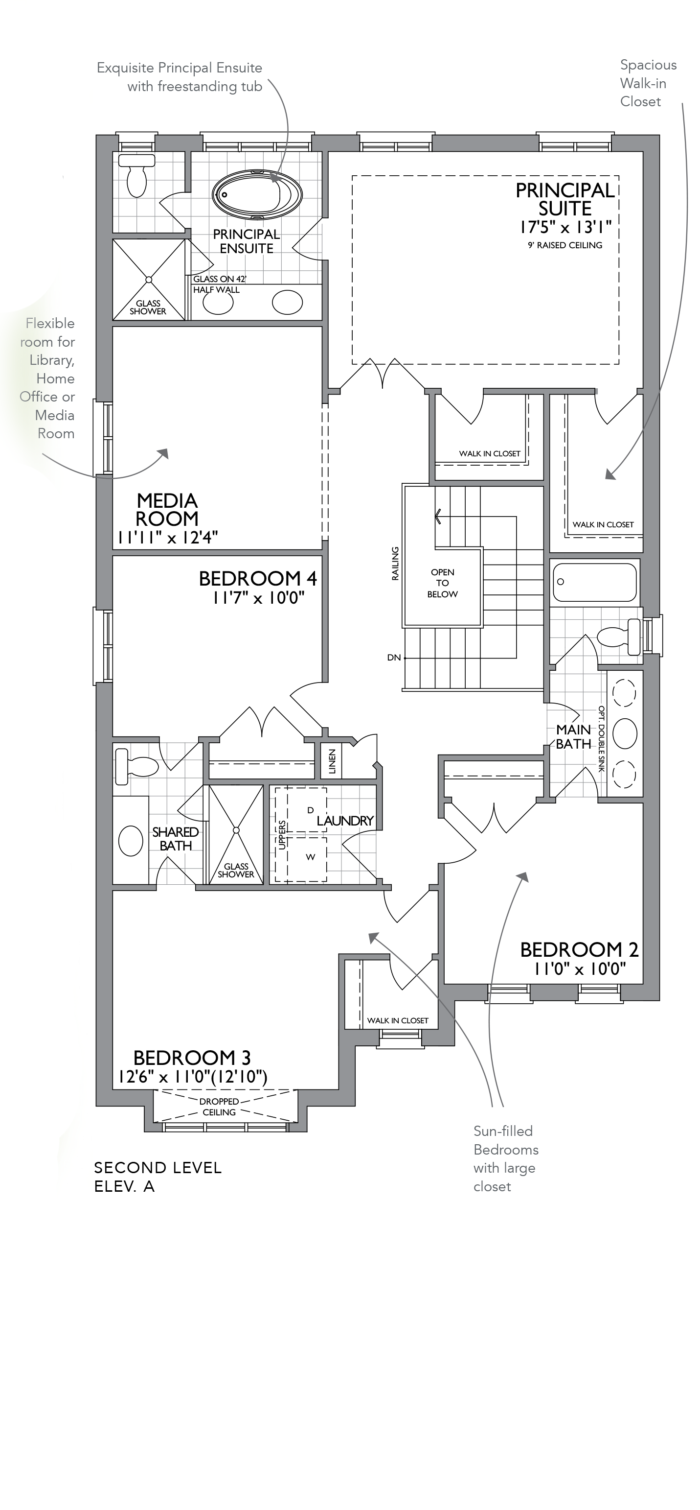
SECOND LEVEL

LOWER LEVEL

Actual usable space may vary from stated area. Dimensions, specifications and architectural detailing are subject to change without notice E. & O.E. All renderings and landscape features are artist’s concept. Model 33-2877


Making a difference
in our community

The Williamsburg Green Community will be making a donation to The Mikey Network on behalf of the residents that buy at Williamsburg Green. Together we can save a life, make a lasting difference and help the beat go on within our community.

LEARN MORE