Skip to Main Content
The The Trail 2,067 sq. ft.
Back

Ground Level

The trail Floorplan

Ground Level

Ground Level Floorplan

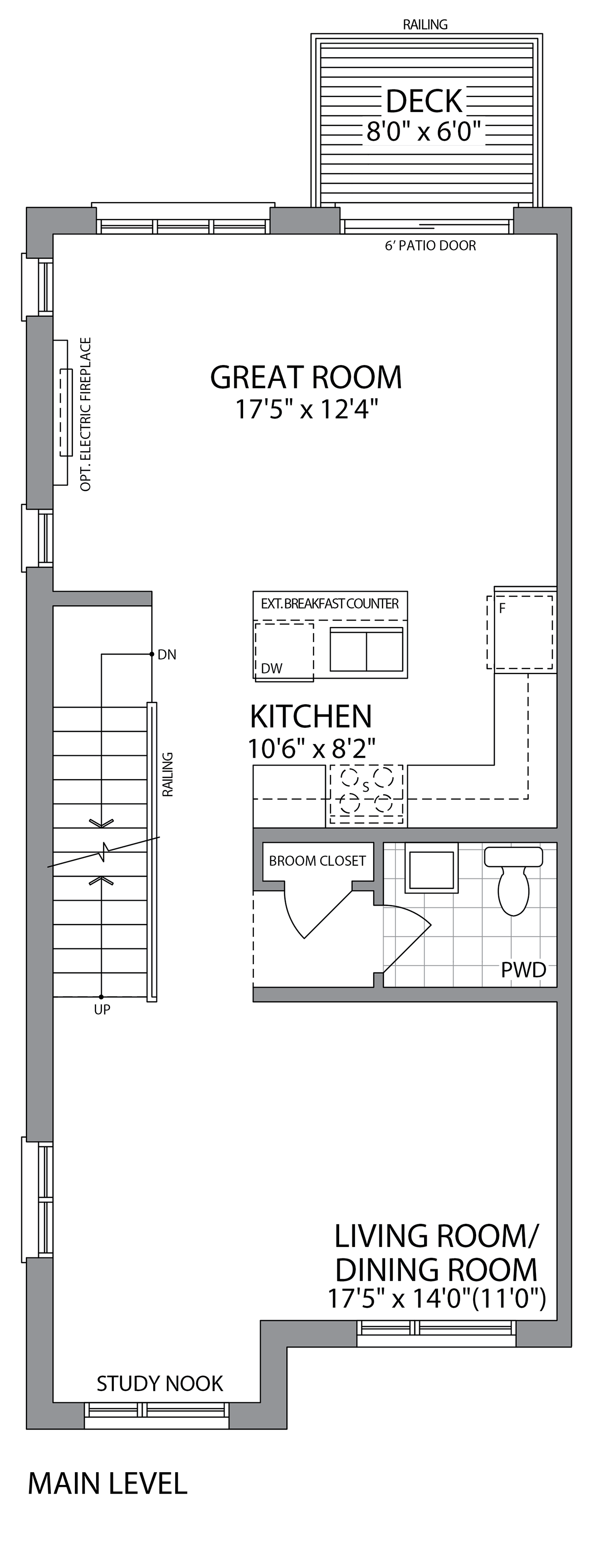
Main Level

Main Level Floorplan

Upper Level

Upper Level Floorplan

Lower Level

Lower Level Floorplan

Making a difference in
our community

The Williamsburg Green Community will be making a donation to The Mikey Network on behalf of the residents that buy at Williamsburg Green. Together we can save a life, make a lasting difference and help the beat go on within our community.

LEARN MORE